CONSTRUCTEUR DE MAISONS
en Midi-Pyrénées, Languedoc-Roussillon

Plus de 10 000 maisons neuves construites en région Occitanie

11200 ORNAISON MAGNIFIQUE VILLA T4 CONTEMPORAINE

Réf.: 54645 En lotissement faites construire votre maison neuve plain-pied à Ornaisons proche des transports ...

Maison contemporaine 3 chambres à Ornaisons (11200)

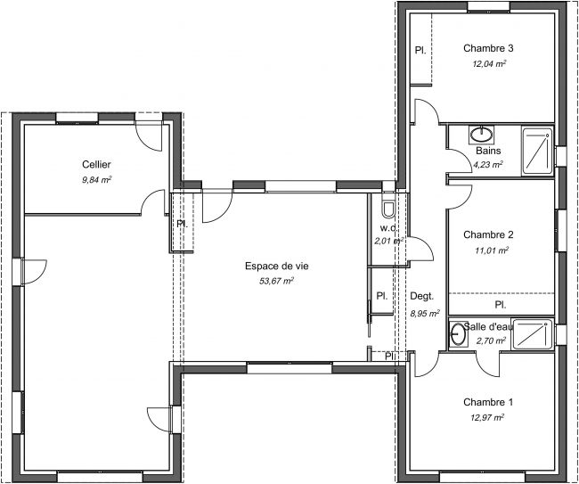
Terrain + maison Ornaisons (11200) - Proposée par Demeures d'Occitanie Narbonne, cette maison neuve à construire de 100 m² est idéale pour ceux qui recherchent un cadre de vie moderne et pratique. Située à Ornaisons (11200), cette maison de plain-pied de type contemporaine offre un espace de vie fonctionnel et lumineux. Vous y trouverez un grand séjour ouvert sur une cuisine américaine, une entrée, un dressing, un toilette séparé, ainsi qu’une suite parentale avec salle de bains privée. Ce bien comprend également 3 chambres supplémentaires et une seconde salle de bains. Le projet se réalise sur un terrain viabilisé de 584 m², dans un lotissement calme, proche des transports, des commodités et des écoles. Terrain sous réserve de disponibilité auprès de notre partenaire foncier, visuels non contractuel, prix a partir de voir prestations en agence hors frais de notaire et taxes diverses. Ornaisons est un village agréable, à proximité de superbes parcs, de petits commerces locaux et avec un accès facile aux grands axes routiers. Un projet à ne pas manquer pour une vie pratique et confortable. Contrat de construction CCMI avec toutes garanties et assurances normes énergétique RE2020.

Le terrain Surface 584 m²
Viabilisé Oui
Constructible
La maison PMR Non
Surface 100 m²
Toilette(s) 1
Salle de bains 2
Pièces 4
Chambre(s) 3
Surface garage Non
Toiture Mixte
Aménagement Cuisine US, Dressing, Entrée, Espace de vie ouvert, Suite parentale
Construction Plain-pied
Localisation Lotissement
Environnement Proche commodités, Proche des transports, Proche des écoles
À proximité Cruscades, Bizanet, Villedaigne, Luc-sur-Orbieu, Canet, Boutenac, Raissac-d'Aude, Névian, Lézignan-Corbières, ...
A propos du prix Prix total : 305 900 €
Demeures d'Occitanie Agence de Narbonne
18 Rue Ernest Cognacq 11100 Narbonne
Votre conseiller(ère) Frédéric Canguilhem

DEMANDER DES INFORMATIONS

Pour connaître et exercer vos droits, notamment de retrait de votre consentement à l'utilisation des données collectées par ce formulaire, veuillez consulter notre politique de confidentialité.

LES OFFRES DE VOTRE CONSTRUCTEUR À NARBONNE

Voir les annonces de votre constructeur à Ornaisons 11200

nouveau
RARE 11110 VINASSAN SUR TERRAIN HORS LOTISSEMENT DE 588M² TRES BELLE VILLA  T4 AVEC GARAGE

RARE 11110 VINASSAN ...

VINASSAN 11110
306 900 €

Terrain avec maison Vinassan (11110) - Découvrez cette élégante maison contemporaine de plain-pied de 90 m² à construire, proposée ...

90 m² 3 ch. 4 p. Terrain 588 m²

nouveau
TRES BELLE VILLA T4 AVEC GARAGE SUR DERNIER TERRAIN DE 360M²

TRES BELLE VILLA T4 ...

BIZANET 11200
216 900 €

Maison 4 pièces + terrain à Bizanet (11200) - Implantée au cœur d’un lotissement paisible de bizanet (11200), cette maison traditionnelle de plain-pied à bâtir séduit ...

84 m² 3 ch. 4 p. Terrain 360 m²

nouveau
TRES BELLE VILLA EN V T5 AVEC GRAND GARAGE

TRES BELLE VILLA EN ...

VINASSAN 11110
326 800 €

Terrain + maison 5 pièces Vinassan (11110) - à vinassan, au cœur du village et tout près des écoles, transports et ...

109 m² 4 ch. 5 p. Terrain 588 m²

spécial investisseur
A SAISIR 5MM DE NARBONNE TRES JOLIE VILLA AVEC 2 CHAMBRES AVEC TERRAIN

A SAISIR 5MM DE NARB...

COURSAN 11110
171 400 €

Maison avec terrain Coursan (11110) - Découvrez ce projet unique à coursan (11110) qui vous offre la possibilité de bâtir ...

60 m² 2 ch. 3 p. Terrain 220 m²

A SAISIR JOLIE VILLA T4 AVEC GARAGE PROCHE NARBONNE

A SAISIR JOLIE VILLA...

COURSAN 11110
210 900 €

Terrain + maison 4 pièces à Coursan (11110) - à coursan (11110), découvrez une belle opportunité pour concrétiser votre projet immobilier ...

86 m² 3 ch. 4 p. Terrain 247 m²

nouveau
RARE PORTIRAGNE TERRAIN PROCHE MER AVEC BELLE VILLA T3

RARE PORTIRAGNE TERR...

PORTIRAGNES 34420
195 500 €

Maison 3 pièces + terrain à Portiragnes (34420) - à portiragnes, découvrez le charme d’un projet de maison neuve de ...

50 m² 2 ch. 3 p. Terrain 250 m²

nouveau
TRES BELLE VILLA 3 CHAMBRES AVEC GARAGE

TRES BELLE VILLA 3 C...

THÉZAN-DES-CORBIÈRES 11200
183 000 €

Terrain avec maison à Thézan-des-Corbières (11200) - Cette maison neuve de 86 m² à construire séduit par ...

86 m² 3 ch. 4 p. Terrain 314 m²

nouveau
BIZANET SUR TERRAIN DE 740 M² CETTE MAGNIFIQUE VILLA EN V 4CHAMBRES AVEC GARAGE

BIZANET SUR TERRAIN ...

BIZANET 11200
287 790 €

Terrain + maison 5 pièces à Bizanet (11200) - Demeures d’occitanie vous propose cette belle maison neuve de plain-pied ...

108 m² 4 ch. 5 p. Terrain 740 m²

nouveau
TRES BELLE VILLA CONTEMPORAINE T4 AVEC GARAGE PROCHE MER

TRES BELLE VILLA CON...

LA PALME 11480
319 000 €

Maison 4 pièces avec terrain La Palme (11480) - Au cœur du charmant village de la palme (11480), découvrez ce projet de maison contemporaine de plain-pied ...

98 m² 3 ch. 4 p. Terrain 457 m²

11110 COURSAN  BELLE VILLA ETAGE T4 AVEC GARAGE

11110 COURSAN BELLE...

COURSAN 11110
231 500 €

Maison + terrain Coursan (11110) - Sur un terrain viabilisé de 240 m² situé dans un lotissement de coursan (11110), à ...

80 m² 3 ch. 4 p. Terrain 240 m²

nouveau
RARE VINASSAN TERRAIN HORS LOTISSEMENT AVEC VILLA CONTEMPORAINE A BATIR

RARE VINASSAN TERRAI...

VINASSAN 11110
268 900 €

Terrain avec maison 4 pièces à Vinassan (11110) - Au cœur de vinassan (11110), découvrez cette maison contemporaine de plain-pied de 89 m², ...

89 m² 3 ch. 4 p. Terrain 422 m²

nouveau
RARE DERNIER TERRAIN DE 315M² AVEC JOLIE VILLA T3 AVEC GARAGE

RARE DERNIER TERRAIN...

THÉZAN-DES-CORBIÈRES 11200
165 000 €

Maison 3 pièces + terrain à Thézan-des-Corbières (11200) - Située à thézan-des-corbières (11200), cette maison neuve de plain-pied de 69 m², proposée à la construction ...

69 m² 2 ch. 3 p. Terrain 315 m²

Vous souhaitez construire à Ornaisons (Aude) en Languedoc-Roussillon ?

Notre équipe commerciale étudiera avec le Bureau d'études la conception de votre future maison traditionnelle ou maison contemporaine en conformité avec la réglementation environnementale 2020 (Maison RE 2020).

Faites confiance à un constructeur pour vous accompagner dans la globalité de votre projet de construction, de la recherche de votre terrain à Ornaisons, au plan de financement jusqu'à la remise des clés de votre maison entièrement personnalisée, et tout cela en vous offrant toutes les garanties liées au contrat CMI.

INSCRIVEZ-VOUS À NOTRE NEWSLETTER

Topscroll
Topscroll