CONSTRUCTEUR DE MAISONS
en Midi-Pyrénées, Languedoc-Roussillon

Plus de 10 000 maisons neuves construites en région Occitanie

VILLA PLAIN PIED 100M² GRAZAC 31190

[AR]Réf.: 47382 En lotissement construisez votre future maison 4 pièces plain-pied à Grazac (31190) proche des transports ...

Grazac (31190), villa contemporaine 4 pièces

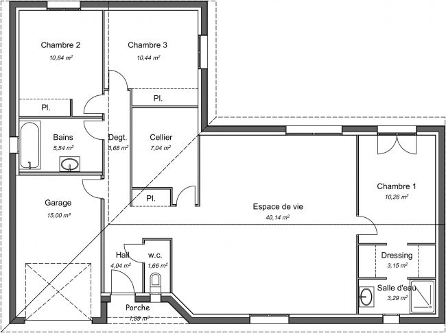
Terrain + maison 4 pièces Grazac (31190) - COUP DE COEUR assuré pour cette villa de plain pied dans un très bel environnement boisé. Entrez et découvrez un séjour-cuisine d'une belle superficie tourné vers le jardin. Belle luminosité grâce à ses grandes ouvertures. Les parents ou amis pourront profiter d'une suite parentale avec salle d'eau et dressing à l'écart des autres chambres en toute intimité.2 chambres, une salle de bains et un wc composent le coin nuit. Le garage avec accès direct à la maison complète le tout. Normes RE 2020. CCMI avec toutes assurances et garanties.

* Prix à partir de pouvant être revu à la hausse en fonction du prix du marché de nos aménageurs fonciers.

Le terrain Surface 508 m²
Viabilisé Oui
Constructible
La maison PMR Non
Surface 100 m²
Toilette(s) 1
Salle de bains 2
Pièces 4
Chambre(s) 3
Surface garage 16 m²
Toiture Traditionnelle
Aménagement Cuisine US, Dressing, Entrée, Espace de vie ouvert, Suite parentale
Construction Plain-pied, En L
Localisation Lotissement
Environnement Proche commodités, Proche des transports
À proximité Caujac, Mauressac, Puydaniel, Lagrâce-Dieu, Auterive, Esperce, Saint-Quirc, Cintegabelle, Gaillac-Toulza, ...
A propos du prix à partir de : 239 300 €
Le prix est donné à titre indicatif et est susceptible de varier en fonction de la valeur du marché foncier, prix non contractuel. Pour toutes informations supplémentaires, renseignez-vous auprès de notre agence locale.
Demeures d'Occitanie Agence de Portet-sur-Garonne
1 avenue de l'Enclos 31120 Portet-sur-Garonne
Votre conseiller(ère) Christine Félio [MP]

DEMANDER DES INFORMATIONS

Pour connaître et exercer vos droits, notamment de retrait de votre consentement à l'utilisation des données collectées par ce formulaire, veuillez consulter notre politique de confidentialité.

LES OFFRES DE VOTRE CONSTRUCTEUR À PORTET-SUR-GARONNE

Voir les annonces de votre constructeur à Grazac 31190

villa contemporaine de 100 m2 T5 VILLAGE DE SAIGUEDE

VILLA CONTEMPORAINE ...

SAIGUÈDE 31470
328 000 €

Terrain avec maison à Saiguède (31470) - Sur la commune de saiguède, petit village plein de charme situé à ...

100 m² 4 ch. 5 p. Terrain 900 m²

Montaigut sur save villa T4 DE 110 M2 +TERRAIN DE 601 M2

MONTAIGUT SUR SAVE V...

MONTAIGUT-SUR-SAVE 31530
333 190 €

Maison + terrain Montaigut-sur-Save (31530) - Cette villa de 110 m² de plain-pied proposée sur un terrain de 601 m² côtoie un confort ...

110 m² 3 ch. 4 p. Terrain 601 m²

nouveau
Exclusivité Maison contemporaine à Colomiers

EXCLUSIVITÉ MAISON C...

COLOMIERS 31770
435 000 €

Terrain + maison à Colomiers (31770) - Située à colomiers (31770), cette maison contemporaine de plain-pied de 130 m² ’implante sur un terrain de 600 ...

130 m² 4 ch. 5 p. Terrain 600 m²

nouveau
EXCLU Maison contemporaine 105 à SEYSSES

EXCLU MAISON CONTEMP...

SEYSSES 31600
249 000 €

Maison avec terrain à Seysses (31600) - Coup de coeur ! située au cœur de seysses (31600), cette ...

105 m² 4 ch. 5 p. Terrain 500 m²

nouveau
Maison contemporaine au Vernet 100 m2

MAISON CONTEMPORAINE...

VERNET 31810
261 000 €

Terrain + maison Vernet (31810) - à vernet (31810), cette maison contemporaine de plain-pied de 100 m² s’inscrit sur un ...

100 m² 3 ch. 4 p. Terrain 500 m²

Leguevin  rare sur le secteur villa contemporaine à etage de 140 m2 avec garage sur terrain de 1274 m2

LEGUEVIN RARE SUR L...

LÉGUEVIN 31490
470 000 €

Maison avec terrain Léguevin (31490) - Située à léguevin (31490), cette villa contemporaine de 140 m² à construire sur un terrain ...

140 m² 4 ch. 5 p. Terrain 1274 m²

nouveau
Maison de 4 Chambres à Nailloux

MAISON DE 4 CHAMBRES...

NAILLOUX 31560
255 000 €

Terrain + maison 5 pièces Nailloux (31560) - Coup de coeur assuré ! à nailloux (31560), cette maison contemporaine de plain-pied de 105 m² ...

105 m² 4 ch. 5 p. Terrain 900 m²

nouveau
Maison contemporaine à Fontenilles 31470

MAISON CONTEMPORAINE...

FONTENILLES 31470
300 000 €

Terrain avec maison 5 pièces Fontenilles (31470) - Implantée au cœur de fontenilles (31470), cette maison contemporaine de plain-pied de 110 ...

110 m² 4 ch. 5 p. Terrain 600 m²

nouveau
Maison contemporaine de 120 m2 avec garage à ROQUES 31120

MAISON CONTEMPORAINE...

ROQUES 31120
364 000 €

Terrain avec maison 5 pièces à Roques (31120) - Exclusivité située à roques (31120), dans un secteur recherché pour sa proximité immédiate des ...

120 m² 4 ch. 5 p. Terrain 1200 m²

villa T4  100 m2 commune de Fonsorbes

VILLA T4 100 M2 COM...

FONSORBES 31470
264 000 €

Terrain avec maison 4 pièces Fonsorbes (31470) - Cette maison neuve, de type traditionnelle, vous offre un espace de vie moderne et fonctionnel, ...

100 m² 3 ch. 4 p. Terrain 449 m²

sainte livrade terrin de 700 m2 + villa de 120 m2 avec garage

SAINTE LIVRADE TERRI...

SAINTE-LIVRADE 31530
308 900 €

Maison avec terrain Sainte-Livrade (31530) - Plongez dans l'harmonie et l'exclusivité au sein de cette villa de charme de 120 m², ...

120 m² 4 ch. 5 p. Terrain 700 m²

nouveau
Maison contemporaine de 125 m2 à PECHABOU (31320)

MAISON CONTEMPORAINE...

PÉCHABOU 31320
377 000 €

Maison 5 pièces avec terrain à Péchabou (31320) - Située à péchabou (31320), cette maison contemporaine de plain-pied de 125 m² se distingue nettement des ...

125 m² 4 ch. 5 p. Terrain 800 m²

Vous souhaitez construire à Grazac (Haute-Garonne) en Midi-Pyrénées ?

Notre équipe commerciale étudiera avec le Bureau d'études la conception de votre future maison traditionnelle ou maison contemporaine en conformité avec la réglementation environnementale 2020 (Maison RE 2020).

Faites confiance à un constructeur pour vous accompagner dans la globalité de votre projet de construction, de la recherche de votre terrain à Grazac, au plan de financement jusqu'à la remise des clés de votre maison entièrement personnalisée, et tout cela en vous offrant toutes les garanties liées au contrat CMI.

INSCRIVEZ-VOUS À NOTRE NEWSLETTER

Topscroll
Topscroll